• Work
  • Projects
  • About
  • Contact

Laura Haun

architecture | design | photography | graphics

  • Work
  • Projects
  • About
  • Contact

Retreat

Looking at a former project, simple in design and development, we were tasked to develop the model into a functional retreat space, close-to-ready for build. 

The site is situated overlooking Poor's Valley in Grainger County, Tennessee. 

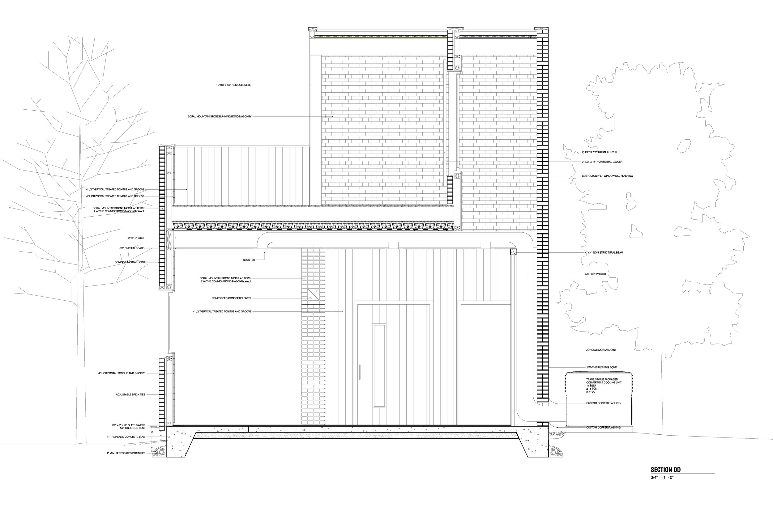
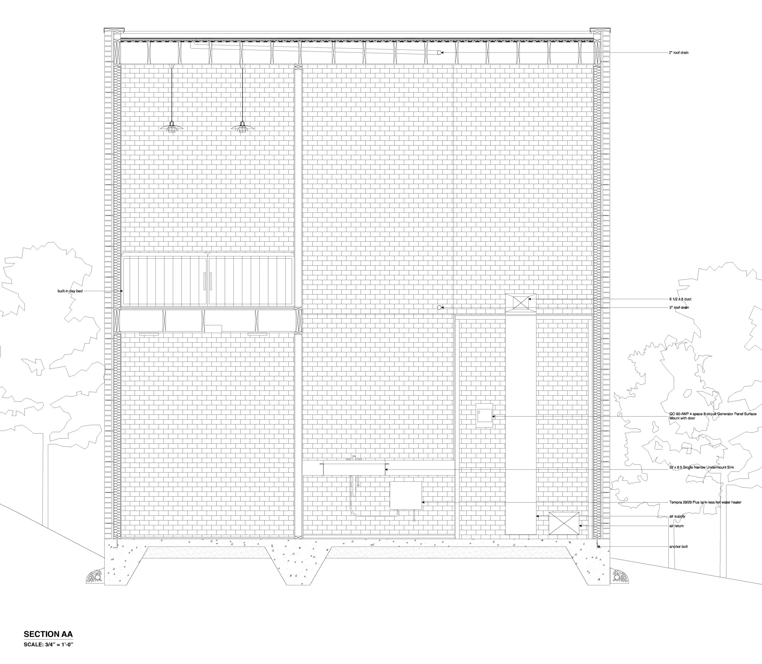
The development of the project was centered around the ideology of creating a small space with clear public and private interactions and transitions. The majority of the plan is transitional space, which offers the clarity of public and private. 

Maintaining a pallet of natural wood tongue and groove specifications with natural-toned brick, and dark slate pavers, interacting with a saturated occupiable green roof, the project envelops a instinctive atmosphere. 

Project partners: Ashlin Fox, Nathan Dutch

Fall 2018 | Fourth Year, Bachelor of Architecture | Professor Ted Shelton

retreat1.jpg
retreat1-2.jpg
INTERIOR1.jpg
INTERIOR2.jpg
INTERIOR3.jpg
p01_RoofPlan_FoxHaunDutch.jpg
p01_Plan+0_FoxHaunDutch.jpg
p01_Plan+10_FoxHaunDutch.jpg
p01_ElectricalPlan_FoxHaunDutch.jpg
p01_SectionAA_FoxHaunDutch.jpg
p01_SectionCC_FoxHaunDutch.jpg
p01_SectionBB_FoxHaunDutch.jpg
p01_CriticalDetail_FoxHaunDutch.jpg

All Photographs Subject to Copyright © 2018 Laura Elizabeth Haun. All rights reserved.